Hej på er.
Jag har inte skrivit på ett tag för det har faktiskt inte hänt någonting.
Vi väntar på att bygglovet ska bli klart och det finns hopp om att det blir klart redan denna vecka vilket innebär att vi kommer att kunna göra slutlig beställning av huset.
Ju snabbare vi gör det, desto snabbare kommer allting igång.
Vill såååå gärna att huset ska bli färdig i juni 2009.
Så fort bygglovet blir klart så meddalar jag Er!
KRAM//Victoria & Co
söndag 21 september 2008
lördag 6 september 2008
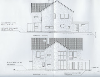
RITNINGAR PÅ HUSET!
Nu äntligen har ritningar kommit (med 2 fel...suck) Fel 1 - fönsterpartiet i vardasrummet ska egetligen vara på andra sidan. Fel 2 - braskaminen ska flyttas till husets yttervägg i vardagsrummet intill stora fönsterpartiet.
Jag har skannat in dom så det är bara att fråga mig om ni ser någonting konstigt.
Annars så tycker vi att huset stämmer exakt överens med våra förväntningar.
Nu hoppas vi att bygglov inte dröjer för länge.
//fam. Levit



Jag har skannat in dom så det är bara att fråga mig om ni ser någonting konstigt.
Annars så tycker vi att huset stämmer exakt överens med våra förväntningar.
Nu hoppas vi att bygglov inte dröjer för länge.
//fam. Levit

tisdag 2 september 2008
KÖKET
Nu har även ritningar på köket kommit.
Det är så snyggt! Det visade sig vara fruktansvärt mycket dyrare än vad vi hade räknat med. Nu måste vi välja en annan lucka för betala tillägg på 60 000 för bara luckor gör vi absolut inte. Men det löser sig. Blir hur snyggt som helst ändå.
Det är så snyggt! Det visade sig vara fruktansvärt mycket dyrare än vad vi hade räknat med. Nu måste vi välja en annan lucka för betala tillägg på 60 000 för bara luckor gör vi absolut inte. Men det löser sig. Blir hur snyggt som helst ändå.
Prenumerera på:
Kommentarer (Atom)